Bauplatz Nr. 4 im attraktiven Neubaugebiet Wietzenbruch Baugebiet Regeberg
29225 Celle, Grundstück zum Kauf
Kontaktdaten
-
NameHerr Norbert Frohms
-
FirmaW & N Frohms KG
-
AdresseWestcellertorstraße 15A
29221 Celle -
E-Mail Zentraleinfo@frohms-immobilien.de
-
E-Mail Direktinfo@frohms-immobilien.de
-
Tel. Zentrale+49 5141 25171
- zum Kontaktformular
Objektdaten
-
Objekt IDA805
-
Objekttyp
-
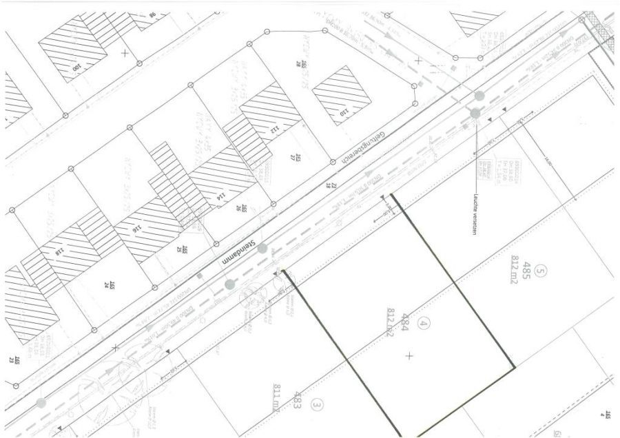
AdresseSteindamm
29225 Celle -
Grundstücksfläche812 m²
-
Kaufpreis158.000 EUR
Objektbeschreibung
Beschreibung
Sichern Sie sich jetzt Ihren Traum-Bauplatz in einem beliebten Neubaugebiet. Der Bauplatz Nr. 4 überzeugt mit einer großzügigen Fläche von 812m². Ob als Kapitalanlage oder zur Verwirklichung Ihres Wohntraums - dieser Bauplatz bietet Ihnen vielseitige Möglichkeiten in bester Nachbarschaft !
Der vorhandene B-Plan Nr. 154 der Stadt Celle " Wohngebiet am Regeberg " regelt eine mögliche künftige Bebauung.
Diese sollte innerhalb der nächsten 2 Jahren erfolgen. Die GFZ wurde mit 0,3 ermittelt.
Die Hausanschlusskosten ( Strom, Wasser, Abwasser, Gas, Kabel etc. ) obliegen dem Käufer.
Die Vermarktung erfolgt provisions und bauträgerfrei.
Kontaktieren Sie uns gerne, wir freuen uns auf Sie !
Lage
Celle, Ortsteil Wietzenbruch
Wohngebiet " Am Regeberg "
Der OT Wietzenbruch ist nur ca. 4km von der Celler City entfernt. Regelmäßige Busanbindung und gut ausgebaute Fahrradwege zur Innenstadt verbindet Sie und Ihre Familie mit der Stadt.
Ein familienfreundliches Leben ist nicht nur durch die Kindergärten, Grundschule, Sportvereine, Einkaufmöglichkeiten, Ärzte, Apotheke, Kleingewerbe gewährleistet, sondern auch durch dieses Neubaugebiet, mit all seinen vielen "Neu Cellern".
Sonstige Informationen
Umgebungskarte
Die dargestellte Position der Immobilie ist nur eine ungefähre Angabe.
Karte in Google Maps öffnen...



