Provisionsfrei! Mehrfamilienhaus mit 3 Wohnungen
29223 Celle, Mehrfamilienhaus zum Kauf
Kontaktdaten
-
NameHerr Lasse Frohms
-
FirmaW & N Frohms KG
-
AdresseWestcellertorstraße 15A
29221 Celle -
E-Mail Zentraleinfo@frohms-immobilien.de
-
E-Mail Direktinfo@frohms-immobilien.de
-
Tel. Zentrale+49 5141 25171
-
Fax+49 5141 25121
- zum Kontaktformular
Objektdaten
-
Objekt IDA806
-
Objekttypen
-
AdresseAn der Beeke 22
29223 Celle -
Wohnfläche170 m²
-
Grundstücksfläche541 m²
-
Zimmeranzahl8
-
BefeuerungGasheizung
-
Baujahr1934
-
Kaufpreis285.000 EUR
Ausstattung / Merkmale
- Gasheizung
Energiebedarfsausweis
-
Baujahr1934
-
BefeuerungsartGasheizung
-
EnergieeffizienzklasseF
-
Endenergiebedarf192,00 kWh/(m²·a)
-
Endenergiebedarf:
192,00 kWh/(m²·a)A+ A B C D E F G H0 25 50 75 100 125 150 175 200 225 250+
Objektbeschreibung
Beschreibung
Lage, Lage, Lage!
Kaum eine Beschreibung wird im Zusammenhang mit einer Immobilie öfter genannt. Sie sichert Ihnen eine gute Vermietung sowie einen langfristigen Werterhalt. Dieses Mehrfamilienhaus mit drei Wohnungen erfüllt genau diese Eigenschaft. Zwei Wohnungen sind vermietet und erzielen eine Kaltmiete von 8.160,-EUR p.a. Die Wohnung im 1.OG ist derzeit leerstehend und kann ab sofort selbstgenutzt oder wieder vermietet werden.
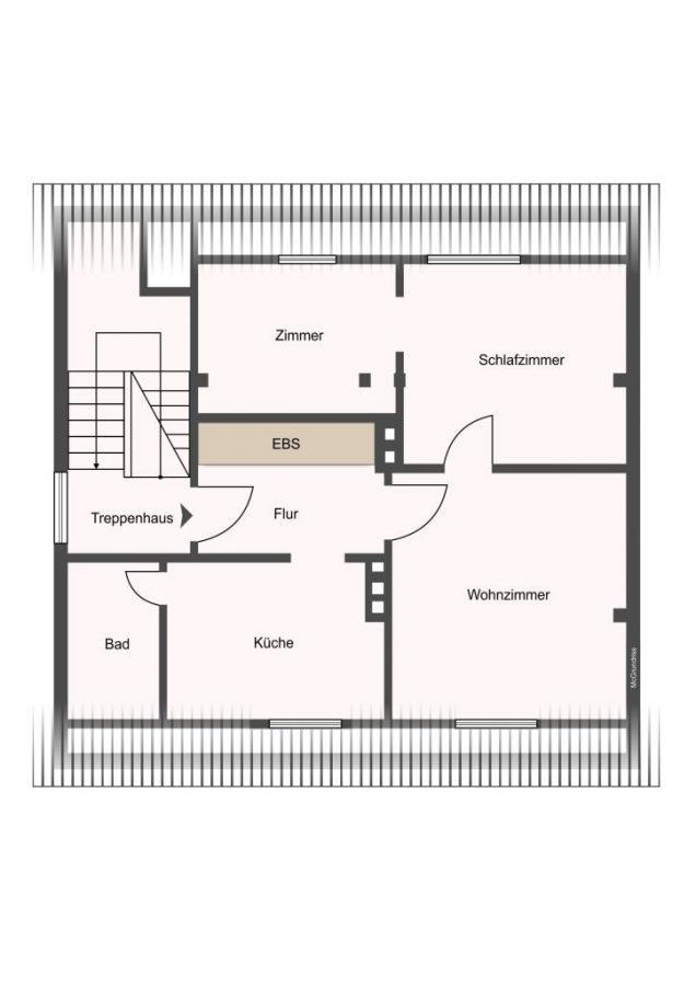
Die Wohnungen im EG und OG sind identisch geschnitten und besitzen drei Zimmer, eine Einbauküche sowie das von der Küche abgehende Badezimmer. Dank der großen Fensterelemente aus Kunststoff profitieren alle Räume vom Tageslicht. Darüber hinaus punkten beide Wohnungen mit einem jeweils zugeordneten Gartenanteil.
Etwas kleiner ist die Dachgeschosswohnung. Zwei vollwertige Zimmer und ein Nebenzimmer verteilen sich auf ca. 45m². Auch hier wird das Badezimmer über die Küche erreicht.
Allen Mietern steht im Keller ein eigener Keller sowie Waschmaschinenplatz zur Verfügung.
Lage
29223 Celle, OT Klein Hehlen
In absolut fußläufiger Nähe finden Sie einen Spielplatz, den Kindergarten "Kaninchengarten" und die Grundschule Klein Hehlen.
Die Bushaltestelle "An der Beeke" ist lediglich 200m entfernt. Im Abstand von jeweils 30 Minuten fährt ein Bus in Richtung Schlossplatz / Innenstadt.
Fleischer, Apotheke, Sparkasse, Bäcker oder Schreibwarengeschäft finden Sie in der ca. 500m entfernten Zugbrückenstraße. Ein Lebensmitteldiscounter steht Ihnen im Bremer Weg zur Verfügung.
Ausstattung
2010 neue Gasetagenheizung DG
2012 Wärmedämmverbundsystem mit 120mm Polystrol-Hartschaumplatten an der Giebelseite
2012 Badsanierung EG, neue Einbauküche
2012 neue Treppenstufen Hauseingang
2016 Fassadenanstrich
2016 Dachrinnen und Fallrohr erneuert (Zink) und Gauben gedämmt
Sonstige Informationen
Für die Richtigkeit der Angaben übernehmen wir keine Haftung. Irrtümer bleiben vorbehalten.
Bitte haben Sie Verständnis, dass wir weitere Bilder aus den bewohnten Wohnungen nicht zur Verfügung stellen können.








